MONDO RESIDENCIAL BAETA NEVES - LANÇAMENTO

R$ 381.633,00
Número do anúncio 2024223
Data do anúncio 10 Março 2022
Permuta Não
Anunciante Corretor

Nome do Empreendimento: Mondo Residencial

TABELA DE PREÇO MARÇO DE 2022

Tabela pós lançamento MONDO RESIDENCIAL - Baeta Neves SBC

Entrega: Agosto/2024

CONSULTAR COM O:

CORRETOR "ACCIOLY" Creci 39.087

Tel. e WhatsApp 

30 Anos de Ramo Imobiliário



  Projeto Arquitetônico: Adalberto Battistini

Projeto de Decoração/Interiores: Carol Vilas Boas

Endereço do Empreendimento: Baeta Neves - SBC

Número de Torres: 1 Torre

Número de Pavimentos: 11 pavimentos tipo / 12º lazer

Número de Unid. por Andar: 8 unidades por andar 

Número Total de Unidades: 88 apartamentos


Tipologia:

Finais 1, 2, 7, 8: 58,49m2

2 dormitórios (sendo 1 suíte)

2 banheiros, terraço grill


Finais 3,4,5,6: 60,12m2

2 suítes, 2 banheiros

+ lavabo, terraço grill


Vagas: 1 vaga / apto. 

Vagas Visitantes: 4 vagas


Área do Terreno: 1.200m2


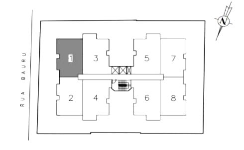
IMPLANTAÇÃO

TERRAÇO


1.TERRAÇO DESCOBERTO

2.ESPAÇO GOURMET

3.CHURRASQUEIRA E FORNO DE PIZZA

4.SALÃO DE FESTAS

5.WC FEMININO

6.WC MASCULINO

7.FRALDÁRIO

8.HALL / ELEVADORES

9.WC FEMININO

10.WC PNE

11.WC MASCULINO

12.SALA DE GINÁSTICA

13.RECREAÇÃO INFANTIL

14.PLAYGROUND

15.ACESSO DECK PISCINA PNE

16.DECK SOLLARIUM

17.PISCINA INFANTIL

18.DECK MOLHADO

19.PISCINA ADULTO


DIFERENCIAIS


ALUMÍNIO

COM PINTURA

ELETROSTÁTICA

NA COR PRETA


PERSIANA INTEGRADA

NOS DORMITÓRIOS

100% BLACKOUT


GUARDA-CORPO DOS

TERRAÇOS EM ALUMÍNIO,

VIDROS E ALVENARIA


INFRAESTRUTURA PARA

INSTALAÇÃO DE SISTEMA

DE ANTENA COLETIVA E TV

POR ASSINATURA


PREVISÃO PARA

AR-CONDICIONADO SPLIT

NA SALA E DORMITÓRIOS

(ENTREGA DE PONTO DE

FORÇA E DRENO)


ABASTECIMENTO DE GÁS NATURAL

CANALIZADO CONTENDO UM PONTO

DE CONSUMO PARA FOGÃO E UM

PONTO PARA INSTALAÇÃO FUTURA

DE AQUECEDOR DE PASSAGEM, POR

CONTA DO PROPRIETÁRIO.


BANHEIROS COM BACIA

SANITÁRIA ECOFLUSH


TOMADAS USB

NOS DORMITÓRIOS


PREVISÃO DE ÁGUA

QUENTE NOS CHUVEIROS,

TORNEIRAS DOS

BANHEIROS E PIA

DA COZINHA


PREVISÃO PARA MEDIÇÃO

INDIVIDUALIZADA DAS

CONTAS DE ÁGUA E GÁS


AZULEJO TOTAL NAS

PAREDES DO BANHEIRO


BANCADA EM GRANITO

E TOMADA ELÉTRICA

PARA GRILL


ÁREAS COMUNS

ENTREGUES EQUIPADAS

E DECORADAS


GERADOR DE ENERGIA

PARA ATENDER

ELEVADOR, BOMBAS,

PORTÕES E ILUMINAÇÃO

DAS ÁREAS COMUNS


SISTEMA DE CFTV COM

10 CÂMERAS INSTALADAS


PORTARIA 24H COM

PREVISÃO PARA

IMPLANTAÇÃO DE

PORTARIA VIRTUAL


PORTARIA ENTREGUE

COM VIDROS BLINDADOS

E AR-CONDICIONADO


ÁREAS COMUNS

ENTREGUES COM

ILUMINAÇÃO LED


PRÓXIMO:

Terminal Paço SBC

Universidade São Judas

Supermercado Sonda

Decathlon SBC

Parque das Bicicletas

Padaria Nova Baeta

CREC

Posto Shell

Hospital e Maternidade

Notre Care ABC

Hato Hospital Veterinário

e Pet Shop

Padaria Vitória Régia

Mini Mercado Extra

Colégio Objetivo

Escola Estadual

José Fornari

Petz

Shopping Metrópole

Prefeitura SBC

SENAI

ETEC

Especificações técnicas
Detalhes
Comentários
1185 vezes visualizado.